洁净送风天花|手术室层流送风天花|ICU病房百级送风天花,洁净送风天花一般分别为百级,千级,万级这三个级别,洁净送风天花(手术室层流送风天花)ICU病房百级送风天花,洁净送风天花是手术室、层流病房的送风末端装置,兼具高效过滤及均流的作用,洁净送风天花依照不同净化级别标准的要求,将洁净柔和的空气送入室内,是手术区域都笼罩在洁净的气流之下。洁净送风天花以我国标准为指导,并依据手术室的大小、形状而设计的送风静压箱,配合双层DPP阻尼网层,能有效的控制手术区域上方的气流流速,使空气柔和、均匀的向下吹送,形成垂直层流效果,又不至于因风速过大造成灰尘二次飞扬。
我司生产的手术室层流送风天花装置是根据国内外的阻漏层技术,依托手术室洁净送风天花以及零压密封两项技术制造出来的新一代洁净送风天花装置,使用本设备可合理分布洁净室内的气流,有效保证室内的洁净度。洁净送风天花可广泛应用于医院洁净手术室、洁净病房、洁净动物房等项目。手术室层流送风天花的重要性:为什么要强调送风天花的性能及其对术后感染控制的重要性?这要从手术的特点说起,手术环境控制关键在于手术区,而手术区控制关键在于手术切口,因此需要高无菌程度控制的只是一个局部区域而非全室。因此,如何从技术措施保障手术环境控制?传统的思路就是区域控制的概念,这也是各国医院相关标准实施的控制思路。随着现代医学科学技术的飞速发展,外科技术对手术室的洁净条件的要求也越来越高。
百级层流手术室是目前比较理想的。但如何有效管理,使层流手术室的空气菌落数符合卫生部颁发的空气环境卫生学标准,又符合洁净手术室等级标准,并使之减少到最低限度,国内检索文献资料较少,是目前洁净手术室管理中值得探讨的一个新的课题。层流送风天花是采用空气洁净技术对微生物污染采取程度不同的控制,达到控制空间环境中空气洁净度适于各类手术之要求;并提供适宜的温、湿度,创造一个洁净舒适的手术空间环境。

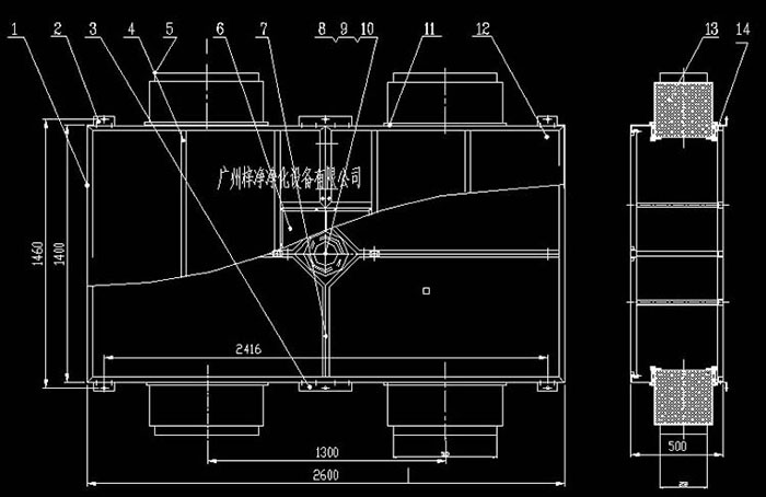
附:手术室的送风量及送风面积
Ⅰ级手术室:
送风量:0.25~0.30m/s(断面风速)
送风面积/m×m:2.4×2.6=6.24
出风速度/(m/s):0.4~0.45
送风量/(m3/h):9500~10100
Ⅱ级手术室
送风量:30-36h-1(换气次数)
送风面积/m×m:1.8×2.6=4.86
出风速度/(m/s):0.23
送风量/(m3/h):3875
Ⅲ级手术室:
送风量:20~24h-1(换气次数)
送风面积/m×m:1.4×2.6=3.64
出风速度/(m/s):0.2
送风量/(m3/h):2620
Ⅳ级手术室
送风量:12~15h-1(换气次数)
送风面积/m×m:不做规定
出风速度/(m/s):≥0.25

手术室层流送风天花作用、用途、概述:
1、手术室洁净层流送风天花装置是根据阻漏层技术,依托手术室洁净送风天花以及新型密封技术制造出来的洁净送风天花装置,使用本设备可合理分布洁净室内的气流,有效保证室内的洁净度,可广泛应用于医院洁净手术室、洁净病房、洁净动物房等项目。
2、洁净送风天花是手术室送风末端经验及实践的结晶,这种送风末端已得到了近千间手术室的运用验证。其优越的性能、独特的散流板能使气流均匀送到工作区域,而中央气流补偿装置能有效地消除人员、设备发热而产生上升气流对层流的影响。
3、层流天花是洁净手术室、层流病房的净化送风末端,它兼有高效过滤,均流及气流补偿作用。层流天花结构的合理性直接影响到手术室的送风效果,净化级别.垂直送风模式,手术室专用不锈钢层流送风天花:层流送风天花参照国际国内规范和技术进行开发,经十多年实际医院使用经验积累,结构先进合理,分为I、II、III级手术室用,箱体冷板喷塑,下框全不锈钢,美观耐用。洁净送风天花装置是根据国内外领先的阻漏层技术,使用本设备可合理分布洁净室内的气流,有效保证室内的洁净度(送风面100级)。
4、箱体内壁四角及铝合金边框可以根据客户需要加工成小于R80mm圆弧过渡,杜绝死角,不易滋生细菌。箱体中可根据需要设置气密性净化灯带,即有层流效果,又可照明;与内嵌入环岛整体式净化灯带相配合,使整个手术室光照度均匀,解决了老款安装在大型手术室中,光照度不均匀的不利因素。

百级送风天花:Ⅰ型(2800*2600)
千级送风天花:Ⅱ型(1800*2600)
万级送风天花:Ⅲ型(1400*2600)
百级送风天花详细尺寸为:2800*2600*500
洁净送风天花粗低初效过滤器:阻力已超过额定初阻力60Pa,或等于2×设计或运行初阻力 3-6个月,超过标准随时更换.
洁净送风天花中效过滤器:阻力已超过额定初阻力80Pa,或等于2×设计或运行初阻力 6-12个月,超过标准随时更换。
洁净送风天花亚高效过滤器:阻力已超过额定初阻力100Pa,或等于2×设计或运行初阻力(低阻亚高效时为3倍)。

